這是一套新中式風格的裝修案例,每一處細節都彰顯著主人的愛好和品位,在裝修的過程中,客戶的需求是希望能省心裝出好的效果。如果你是第一次裝修,沒有經驗,又想裝修出好的效果,希望這套裝修案例能給你帶來一些靈感。

房屋面積:建筑面積163平米
房屋戶型:四房兩廳一廚兩衛
常住人口:4人
裝修風格:新中式風格
房屋屬性:新房毛坯
裝修費用:56W

業主裝修需求:
1.平時比較忙,沒時間管裝修工地,第一次裝修,也不會管,希望有人負責裝修全程的管理。
2.房子要住比較久,空間設計需要注重長期的宜居性,裝修設計看上去要和諧統一,硬裝軟裝最好是能有專業的搭配方案。

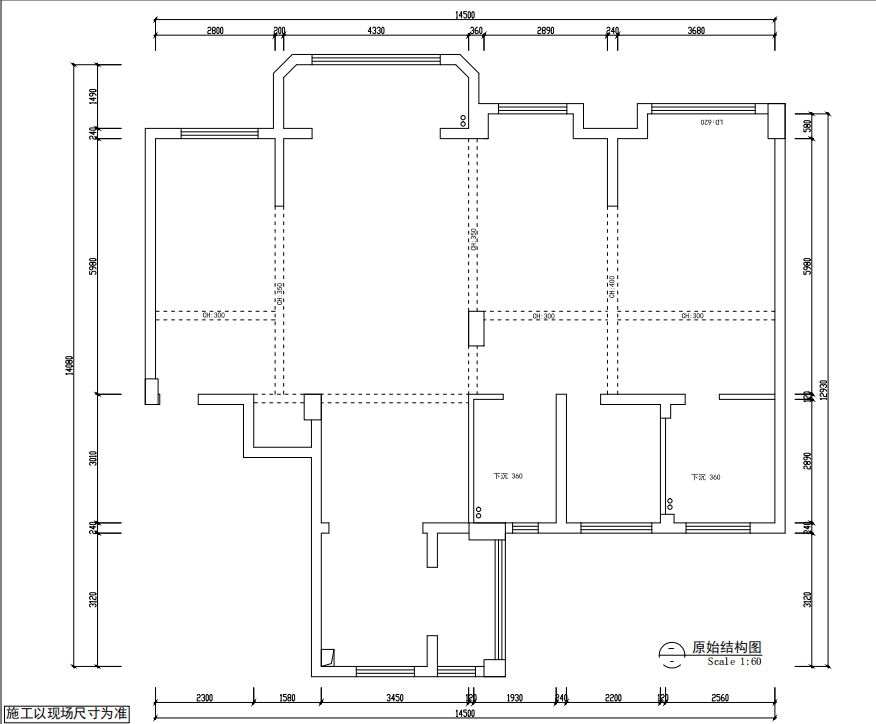
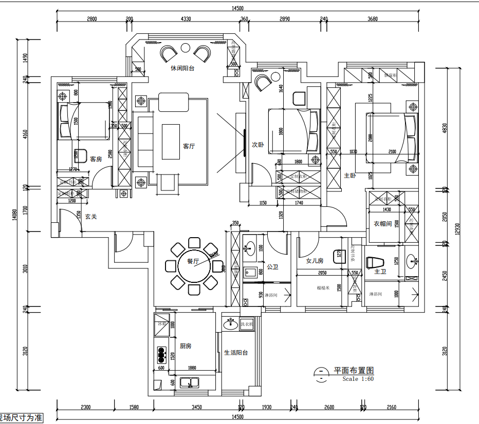
戶型分析
本戶型為目前主流的四房兩廳一廚兩衛戶型,原戶型沒有太大的瑕疵,根據業主的需求,四人常住,平時有客人拜訪,就沒有做書房的設計,將進門的房間改成客臥,距離主人家的臥室比較遠,給予客人一定的私人空間。
業主不要求復雜的設計,希望專注于細節,通過多次交流,最終將設計風格定位于新中式。由于居住人口較多,儲物需求比較大,將進門右側雞肋的小空間隔出作為一個儲物間,滿足日常的雜物堆放。
由于是雙陽臺的戶型,適合將靠近廚房的陽臺作為生活陽臺,作為平時晾衣洗衣功能區,考慮到沒有書房的設計,將客廳陽臺打造成一個小憩的空間,讓平時的生活休閑更有情調。

裝修實景
客廳實景,此套房子的裝修中,我們主要提供的是全屋的墻面吊頂裝修,主材是竹纖維護墻板。為了業主全房出效果,獲得更省心的裝修服務,我們整合了其他建材異業資源,每個建材品類都找了三個商家進行洽談合作,直接向業主提供了三套全房預算報價,最終提供了全案設計+全屋整裝+全房施工監理的服務,因此業主在裝修全程都沒有操心,各類建材采購價均以低于市場價的10%進行了采買。
客廳沙發背景墻,山水定制畫詩意滿滿,為保障裝修效果,在裝修動工初期,我們組織了所有合作的建材商家進入此次裝修項目施工推進群,每日巡檢工地,檢查各個商家發過來的產品是否達標,每天在群里進行施工現場的視頻圖片實時發布,因此業主在整個裝修過程中,每天在工作間隙和吃飯時間,也可以隨時看到我們工地的施工情況以及裝修施工的進度,用業主的話說,就非常放心。

客廳電視背景墻,護墻板搭配金屬線條的設計,簡單大氣,為保障裝修如期完成,我們進行施工監理的過程中,前期就在群里先行溝通了裝修安排,柜體門等定制類產品,都是提前和品牌商進行協商,最終此次裝修工期總時間僅為3個月(前期一周的設計時間除外)

裝修完工驗收,軟裝搭配也做好了,關于這套房子的驗收,我們是先和各建材商以及業主在工地依次對每個完工的項目做驗收,全房完工后,業主再進行整體的驗收,確保全屋的整體搭配都是和諧的,最后,我們公司總部又進行樣板房的驗收,檢核整個全房裝修是不是對照720VR進行了一比一的還原,整個裝修過程業主的體驗感是不是省心省力,全程預算是不是合乎標準,是否嚴格按照前期的裝修清單來。

業主如愿以償住進了新家,裝修過程也很滿意,這套房子的裝修到這里也告一段落了,但是我們的服務到這里并沒有結束,我們和客戶的關系也一直在延續。全房整裝的其他服務本不是我們一個護墻板裝修公司該干的事情,但是我們知道業主想要的是一套好看舒適的房子,并不是一個好看的墻面,所以我們愿意往前走一步,多做一些力所能及的事,愛出者愛返,福往者福來,無口碑,不裝修!




